Italiano
English
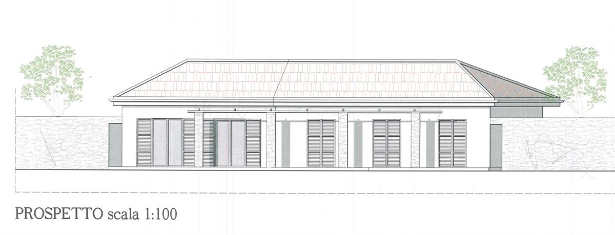
Alassio, ai piedi della frazione di Moglio, si propone in vendita un terreno, di circa 1.500 m², sul quale é prevista la costruzione di una villa, tutta su un piano terreno di circa 114 m². Il progetto prevede la realizzazione di un ampio soggiorno con angolo cottura, un bagno per la zona giorno, tre camere da letto, un altro bagno per la zona notte, disimpegno e un ripostiglio. Davanti al soggiorno é previsto un porticato, aperto, per creare una zona esterna ombreggiata per un terrazzo di ampie dimensioni. Come copertura é stato autorizzato un classico tetto a 4 falde con classici coppi liguri. Come parcheggio é stato pensato un doppio posto auto, ma nulla vieta di richiedere l'autorizzazione per costruire un box pertinenziale di 35 m². Il terreno sono in totale 3 fasce molto agevoli da percorrere, e secondo la mia opinione, adattissime per ospitare un impianto di pannelli solari e fotovoltaici per produzione di acqua calda e corrente elettrica. Il terreno é posizionato in direzione sud e dispone di una discreta vista mare e una ampia vista sulle colline alassine.
Se vuoi saperne di più compila il form seguente. I campi contrassegnati con asterisco sono obbligatori
Nota Informativa per invio comunicazioni
Ho letto e compreso la Nota Informativa